Działkowa 1
Działkowa 2
* – Segment sprzedany
Na sprzedaż mamy dla Państwa 8 gotowych segmentów mieszkaniowych wraz z przynależącymi do nich ogródkami oraz miejscami parkingowymi.
Każdy segment jest dwupiętrowy o powierzchni od 71,02 do 78,95m², ogródki mają od 37 do 324m², do każdego segmentu przynależy jedno miejsce parkingowe.
Data odbioru budowy: styczeń 2026
Rodzaj budowy: dom wielorodzinny
Budynek: dwukondygnacyjny
Stan wykończenia: deweloperski
Rynek: pierwotny
Forma własności: pełna
Typ ogłoszeniodawcy: deweloper
Informacje dodatkowe:
- ogródek
- taras
- miejsce postojowe
Bezpieczeństwo: teren zamknięty
Zabezpieczenie: drzwi i okna antywłamaniowe i rolety zewnętrzne, barierki metalowe malowane,
Ogrzewanie: piece gazowe, ogrzewanie podłogowe w cenie
Dach: dachówka
Użyte do budowy materiały: ocieplenie styropianowe 20 cm, cegła ceramiczna, elewacja z tynku silikonowego, okna plastikowe
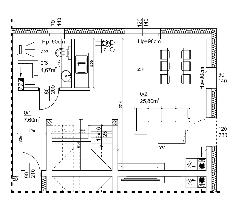
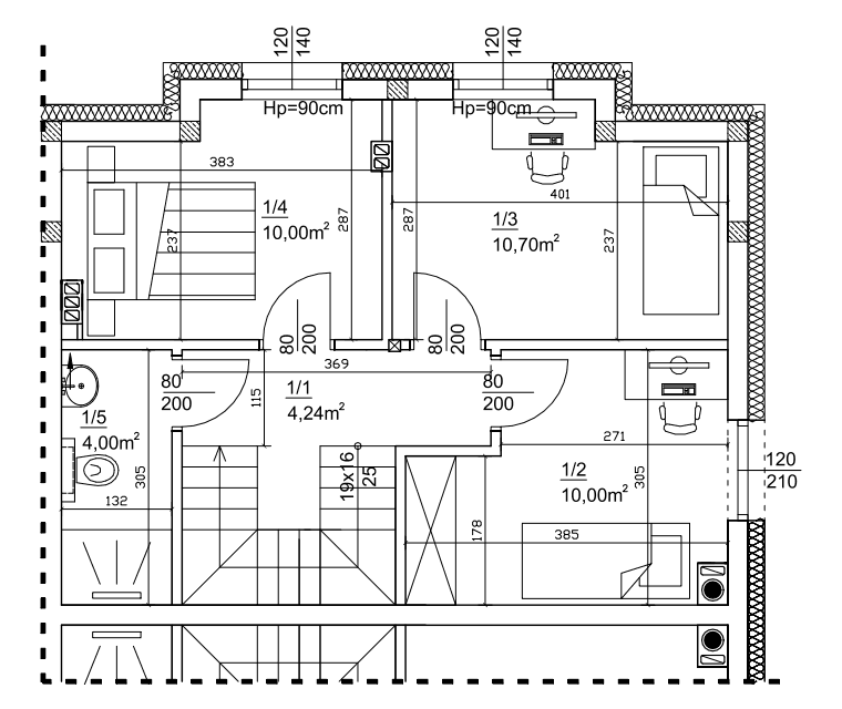
Działkowa 1 - Segment 1 - 71,44m²
Dostępny
Cena: 579,999.00zł
Cena za m²: 8,118.69zł
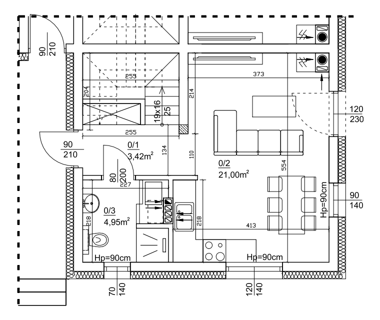
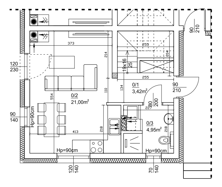
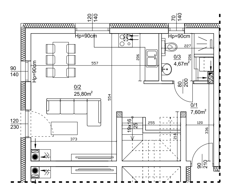
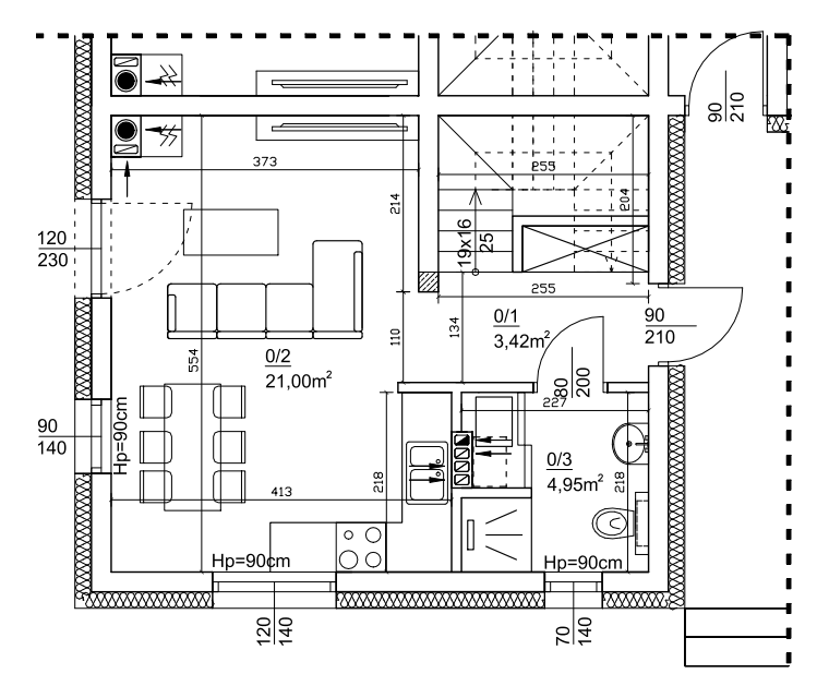
Poziom 0 – 34,05m²
- 0/1 Korytarz – 8,13m²
- 0/2 Salon i jadalnia – 21,29m²
- 0/3 Łazienka – 4,63m²
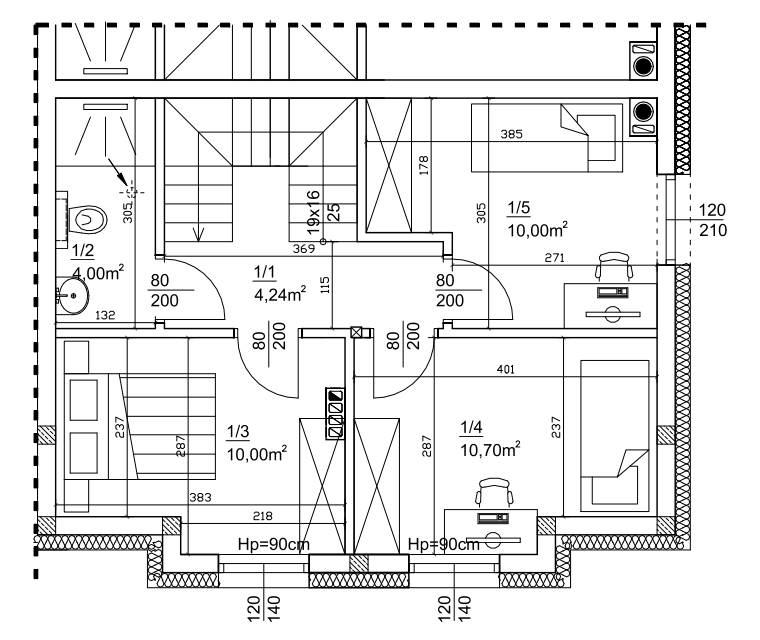
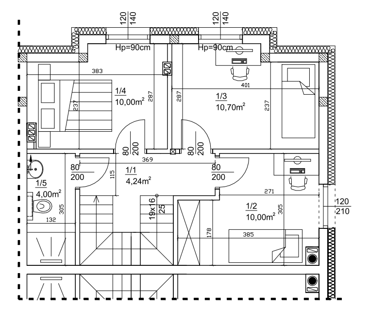
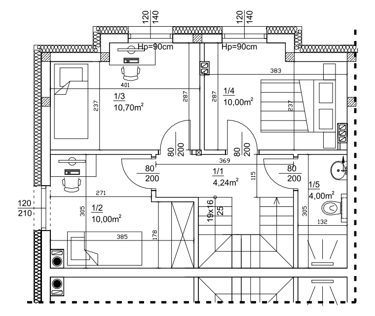
Poziom 1 – 37,39m²
- 1/1 Korytarz – 4,05m²
- 1/2 Pokój – 9,52m²
- 1/3 Pokój – 10,14m²
- 1/4 Pokój – 9,78m²
- 1/5 Łazienka – 3,90m²
Suma: 71,44m²
+ ogród – 124m²
+ miejsce postojowe
Działkowa 1 - Segment 2 - 78,58m²
Sprzedany
Cena: 589,999.00zł
Cena za m²: 7,508.26zł
Poziom 0 – 41,23m²
- 0/1 Korytarz – 3,81m²
- 0/2 Salon i jadalnia – 33,08m²
- 0/3 Łazienka – 4,34m²
Poziom 1 – 37,35m²
- 1/1 Korytarz – 4,04m²
- 1/2 Pokój – 9,39m²
- 1/3 Pokój – 10,18m²
- 1/4 Pokój – 9,84m²
- 1/5 Łazienka – 3,90m²
Suma: 78,58m²
+ ogród – 193m²
+ miejsce postojowe
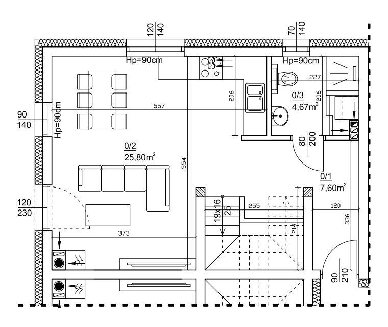
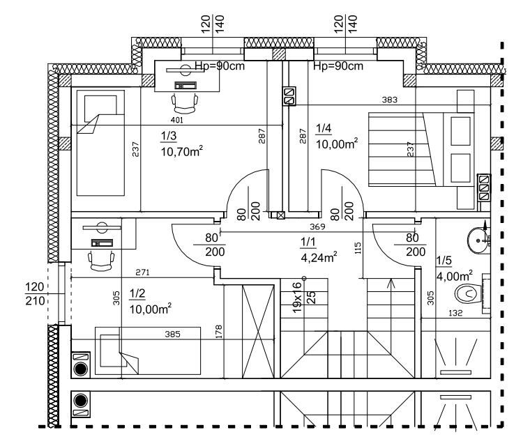
Działkowa 1 - Segment 3 - 78,64m²
Dostępny
Cena: 539,999.00zł
Cena za m²: 6,866.72zł
Poziom 0 – 41,31m²
- 0/1 Korytarz – 3.81m²
- 0/2 Salon i jadalnia – 33,14m²
- 0/3 Łazienka – 4,36m²
Poziom 1 – 37,33m²
- 1/1 Korytarz – 4,11m²
- 1/2 Pokój – 9,30m²
- 1/3 Pokój – 10,21m²
- 1/4 Pokój – 9,81m²
- 1/5 Łazienka – 3,90m²
Suma: 78,64m²
+ ogród – 95m²
+ miejsce postojowe
Działkowa 1 - Segment 4 - 71,02m²
Dostępny
Cena: 519,999.00zł
Cena za m²: 7,321.87zł
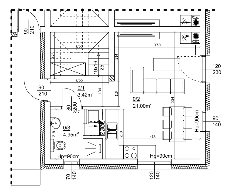
Poziom 0 – 34,01m²
- 0/1 Korytarz – 8,10m²
- 0/2 Salon i jadalnia – 21,29m²
- 0/3 Łazienka – 4,62m²
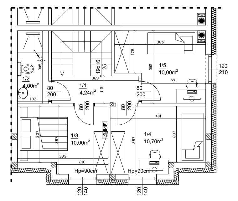
Poziom 1 – 37,01m²
- 1/1 Korytarz – 4,14m²
- 1/2 Pokój – 9,06m²
- 1/3 Pokój – 10,18m²
- 1/4 Pokój – 9,73m²
- 1/5 Łazienka – 3,90m²
Suma: 71,02m²
+ ogród – 37m²
+ miejsce postojowe
Działkowa 2 - Segment 1 - 78,20m²
Sprzedany
Cena: 629,999.00zł
Cena za m²: 8,056.25zł
Poziom 0 – 40,96m²
- 0/1 Korytarz – 3,76m²
- 0/2 Salon i jadalnia – 32,95m²
- 0/3 Łazienka – 4,25m²
Poziom 1 – 37,24m²
- 1/1 Korytarz – 4,11m²
- 1/2 Pokój – 9,23m²
- 1/3 Pokój – 10,03m²
- 1/4 Pokój – 10,00m²
- 1/5 Łazienka – 3,87m²
Suma: 78,20m²
+ ogród – 324m²
+ miejsce postojowe
Działkowa 2 - Segment 2 - 71,48m²
Dostępny
Cena: 589,999.00zł
Cena za m²: 8,254.04zł
Poziom 0 – 33,92m²
- 0/1 Korytarz – 8,06m²
- 0/2 Salon i jadalnia – 21,25m²
- 0/3 Łazienka – 4,61m²
Poziom 1 – 37,56m²
- 1/1 Korytarz – 4,05m²
- 1/2 Pokój – 9,40m²
- 1/3 Pokój – 10,26m²
- 1/4 Pokój – 9,92m²
- 1/5 Łazienka – 3,93m²
Suma: 71,48m²
+ ogród – 128m²
+ miejsce postojowe
Działkowa 2 - Segment 3 - 71,50m²
Dostępny
Cena: 519,999.00zł
Cena za m²: 7,272.71zł
Poziom 0 – 33,91m²
- 0/1 Korytarz – 8.10m²
- 0/2 Salon i jadalnia – 21,19m²
- 0/3 Łazienka – 4,62m²
Poziom 1 – 37,59m²
- 1/1 Korytarz – 4,11m²
- 1/2 Pokój – 9,49m²
- 1/3 Pokój – 10,16m²
- 1/4 Pokój – 9,90m²
- 1/5 Łazienka – 3,93m²
Suma: 71,50m²
+ ogród – 38m²
+ miejsce postojowe
Działkowa 2 - Segment 4 - 78,95m²
Sprzedany
Cena: 529,999.00zł
Cena za m²: 6,713.10zł
Poziom 0 – 41,30m²
- 0/1 Korytarz – 3,82m²
- 0/2 Salon i jadalnia – 33,14m²
- 0/3 Łazienka – 4,34m²
Poziom 1 – 37,65m²
- 1/1 Korytarz – 4,03m²
- 1/2 Pokój – 9,56m²
- 1/3 Pokój – 10,26m²
- 1/4 Pokój – 9,87m²
- 1/5 Łazienka – 3,93m²
Suma: 78,95m²
+ ogród – 115m²
+ miejsce postojowe
























